I. Phương tiện và trang thiết bị dạy học
1. Phương tiện:
Giáo án, đề cương, phấn bảng, máy chiếu, bản vẽ, ...
2. Trang thiết bị:
Tên và các thông số kỹ thuật của thiết bị, dụng cụ; nguyên, nhiên vật liệu tiêu hao | Đơn vị | SL | Ghi chú | Bổ sung | |
1 | Thiết bị | ||||
Máy phay vạn năng 6X332B | Cái | 07 | Sử dụng tiếp | ||
Phụ tùng theo máy phay | Bộ | 07 | Sử dụng tiếp | ||
Máy mài 2 đá | Cái | 01 | Sử dụng tiếp | ||
Đầu phân độ vạn năng | Cái | 07 | Sử dụng tiếp | ||
Phụ tùng theo đầu phân độ vạn năng | Bộ | 07 | Sử dụng tiếp | ||
2 | Dụng cụ | ||||
Đồng hồ so + giá đỡ | Bộ | 05 | Sử dụng tiếp | ||
Thước cặp 1/50, L=200 | Cái | 07 | Sử dụng tiếp | ||
Bộ cờ lê từ 8÷24mm | Bộ | 05 | Sử dụng tiếp | ||
3 | Nguyên, vật liệu (cho 01 SV) | ||||
Phôi thép Ф42, L=220 | Cái | 01 | Sử dụng tiếp | ||
Dụng cụ cắt: dao phay đĩa modun m=1,75 (bộ 8 con) | Bộ | 02 | Sử dụng tiếp | ||
Dẻ lau | Kg | 0,2 | Hủy | ||
Chổi sơn | Cái | 0,2 | Sử dụng tiếp | ||
Dầu HD50 | Lít | 0,5 | Hủy | ||
4 | Khác |
Có thể bạn quan tâm!
-
Phương Tiện Và Trang Thiết Bị Dạy Học -
Sơ Đồ Lắp Cầu Bánh Răng Vi Sai -
Điều Chỉnh Độ Đồng Tâm Ụ Trước Và Ụ Sau Đầu Phân Độ -
Phay Bánh Răng Trụ Răng Xoắn (Hướng Xoắn Trái) -
Phay Trục Then Hoa Bằng Dao Phay Đĩa Ba Mặt Cắt -
Thực hành phay bào nâng cao - 12
Xem toàn bộ 107 trang tài liệu này.
II. Thực hiện bài học
2.1. Mục tiêu bài học
Sau khi học xong bài này, SV có khả năng:
+ Về kiến thức
- Củng cố phương pháp phay rãnh xoắn hướng xoắn phải
- Biết phương pháp tính toán các thông số để phay được bánh răng trụ răng xoắn hướng xoắn phải.
+ Về kỹ năng
Phay được bánh răng trụ răng xoắn hướng xoắn phải đảm bảo yêu cầu kỹ thuật.
+ Về thái độ
- Nghiêm túc, tự giác trong quá trình học tập, rèn luyện tác phong sản xuất công nghiệp.
- Đảm bảo an toàn lao động, vệ sinh môi trường.
2.2. Nội dung bài học
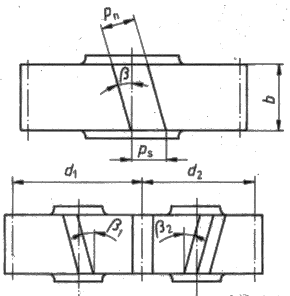
2.2.1 Thông số hình học bánh răng trụ răng xoắn hướng xoắn phải
Các thông số cơ bản của bánh răng xoắn hướng xoắn phải nhìn chung giống bánh răng trụ răng thăng thẳng
Đặc trưng cơ bản của bánh răng trụ răng xoắn là góc xoắn β và bước xoắn L
Modul tiếp tuyến: Bước tiếp tuyến: Đường kính vòng chia: Số răng:
Modul pháp tuyến: Bước pháp tuyến: Đường kính đầu răng:
Khoảng cách tâm:
ms = mn/cosβ Ps = Pn/ cosβ d = ms. z
Z = d/ms
mn = Pn/π = ms.cosβ Pn = π.mn = Ps.cosβ dd = d + 2.mn
a = (d1 +d2)/2

Hình 5.2.1 Thông số bánh răng trụ răng xoắn
2.2.2. Phương pháp gia công bánh răng trụ răng xoắn
Hình 5.2.2 sơ đồ gá đặt khi phay bánh răng trụ răng xoắn
Thực chất của việc phay bánh răng trụ răng xoắn hướng xoắn phải là phay rãnh xoắn định hình trên phôi trụ và thực hiện phân độ để phay các răng của bánh răng. Đầu phân độ được lắp cầu bánh răng vi sai giống như trong trường hợp phay rãnh xoắn, sau khi phay được một rãnh răng thì tiến hành đưa dao về vị trí ban đầu và phân độ để phay rãnh xoắn tiếp theo, Quá trình gia công thô và tinh có thể tiến hành giống như phay bánh răng trụ răng thẳng.
Tính toán cầu visai để đảm bảo truyền động từ bàn máy đến đầu phân độ tương tự như phay rãnh xoắn
- Đường kính trung bình: d = De – H
- Chiều dài bước xoắn: L = п.d.cotgβ
- Tính tỷ số truyền i để tìm các bánh răng lắp cầu vi sai:
i N.T
L
A z1 z3
4
z z
2
Trong đó: N: đặc tính đầu phân độ vạn năng (N=40)
T: bước trục vít me dọc bàn máy phay (T=6)
2.2.3. Chọn chế độ cắt
Chế độ cắt được tính theo vật liệu làm dao và vật liệu gia công, thông thường dao bằng thép gió có vận tốc cắt V = 20 ÷ 40m/ph, Cách chọn các thông số chế độ cắt giống như khi phay bánh răng trụ răng thẳng
2.2.4. Trình tự thực hiện phay bánh răng trụ răng xoắn hướng xoắn phải

Bước 1: Tính toán các thông số cơ bản của bánh răng trụ răng xoắn hướng xoắn phải và tính toán phân độ
Tính toán phân độ theo phương pháp phân độ đơn giản, điều chỉnh dẻ quạt để được số lỗ trên vòng lỗ cần chia sau mỗi lần phay một rãnh răng.
Khử độ rơ khe hở đầu phân độ trước khi phay rãnh răng thứ nhất
Bước 2: Tính tỷ số truyền i để tìm các bánh răng z1, z2, z3, z4 lắp cầu bánh răng
i N.T
L
A z1 z3
4
z z
2
Hìn5.2.3: Lắp cầu bánh răng vi sai phay bánh răng trụ răng xoắn
Bước 3: Lắp cầu bánh răng
Cầu bánh răng nối từ trục IV đầu chia độ vạn năng đến trục vít me dọc bàn máy phay như hình 5.2.3.
Bánh răng z1 lắp chặt vào trục vít me dọc bàn máy phay
Bánh răng z4 lắp chặt vào trục IV (trục phụ) đầu phân độ
Phay bánh răng trụ răng xoắn hướng xoắn phải do đó ta lắp cầu bánh răng là cầu lẻ nghĩa là số trục nối từ trục chủ động đến trục bị động là số lẻ. Bánh răng z2, z3 lắp lồng không trên trục trung gian như hình 5.2.4

Hình5.2.4: Vị trí lắp bánh răng trên cầu vi sai
Bước 4: Gá phôi lên máy
Phôi gá một đầu vào mâm cặp 3 chấu của đầu phân độ đầu kia chống tâm ụ sau của đầu phân độ hoặc hai đầu chống tâm truyền mô men quay bằng tốc kẹp
Bước 5: Gá dao
Khi cắt bằng dao phay ngón modul gá trục dao đứng vuông góc với bàn máy
Khi cắt bằng dao phay đĩa modul trên máy phay đứng ta nghiêng đầu máy mang dao đi một góc bằng góc xoắn của bánh răng cần gia công, hướng quay nghiêng đầu máy cùng chiều kim đồng hồ.
Trường hợp cắt bằng dao phay đĩa modul trên máy phay ngang thì máy phay phải quay được bàn máy một góc bằng góc xoắn (ví dụ máy phay 6P82 xoay được bàn máy)
Bước 6: Phay rãnh răng
Quá trình điều chỉnh máy để phay bánh răng trụ răng xoắn hướng xoắn phải tương tự như khi điều chỉnh máy để phay rãnh rãnh xoắn hướng xoắn phải cũng phải điều chỉnh dao vào tâm phôi, thực hiện lấy chiều sâu cắt.
Khi phay bánh răng trụ răng xoắn hướng xoắn phải sau khi phay xong rãnh răng thứ nhất rút chốt cài thực hiện phân độ đơn giản để phay sang rãnh răng thứ hai. Làm tương tự đến khi xong hết các rãnh răng.
Chú ý: khi gia công chi tiết vừa quay vừa tịnh tiến lúc này bộ bánh răng thay thế sẽ chuyển động quay do đó phải nới lỏng chốt cố định đĩa chia độ với thân đầu phân độ và chốt cài tay quay đầu chia độ phải cắm vào lỗ của đĩa chia.
Bước 7: kết thúc
2.2.5. Các dạng sai hỏng, nguyên nhân và cách phòng ngừa
Dạng hỏng | Nguyên nhân | Cách phòng ngừa | |
1 | Các răng không đều nhau (răng to răng nhỏ) | - Không khử độ dơ đầu phân độ - Làm xê dịch dẻ quạt khi phân độ | - Khử độ dơ đầu phân độ trước khi phay - Siết chặt vít cố định 2 thanh dẻ quạt |
2 | Hướng xoắn không đúng | Lắp số cầu bánh răng trung gian bị sai | Kiểm tra lại và lắp đúng số cầu bánh răng trung gian |
Số răng không đủ (thừa hoặc thiếu) | - Tính toán phân độ sai - Quên không xoay dẻ quạt sau mỗi lần phân độ | - Tính toán đúng trước khi phay - Mỗi lần phân độ xong phải xoay dẻ quạt | |
4 | Profin của răng không đúng | - Chọn dao phay mô đun sai - Chọn số dao trong bộ dao không đúng | - Chọn đúng số dao - Chọn đúng số dao trong bộ dao |
5 | Răng đều nhưng đỉnh răng đầu to, đầu nhỏ | Rà tâm chi tiết chưa song song với mặt bàn máy và phương chạy dao | Rà tâm chi tiết song song với mặt bàn máy và phương chạy dao trước khi gia công |
6 | Độ nhám sườn răng không đạt | - Dao cùn - Chế độ cắt chưa hợp lý - Hệ thống công nghệ kém cứng vững | - Thay dao hoặc mài lại dao - Chọn lại chế độ cắt - Siết tay gạt hãm các chuyển động không cần thiết |
2.3. Tổ chức luyện tập kỹ năng
1. Bài tập
a. Bản vẽ
| |
|
b.Yêu cầu luyện tập:
Gia công bánh răng trụ răng xoắn hướng xoắn phải có β = 18°, m = 1,75, Z=17 Yêu cầu: 2sinh viên/1sản phẩm
2. Các bước thực hiện
TT Bước thực hiện Hướng dẫn thực hiện
1 Bước 1: Tính toán các thông số gia công và tính toán phân độ
Chiều sâu rãnh răng gia công: 3,792
ms
mn
cos ß
1,75
cos18o
1,75
0,951
1,84
Đường kính đỉnh răng để chuẩn
bị phôi: Ф34,78
D ms .Z 1,84.17 31,28
De D 2mn 31,28 2.1,75 34,78
h 2,167.mn 2,167.1,75 3,792
n N 40 2 6
tq Z 17 17
Sau khi phay được một rãnh răng tiến hành phay rãnh răng thứ hai cần phân độ quay tay quay đi hai vòng và 6 lỗ trên vòng lỗ 17
2 Bước 2: Tính tỷ số truyền i để tìm các bánh răng z1, z2, z3, z4 lắp cầu bánh răng
90o ß 90o 18o 72o
L .D. tan.31,28. tan 72o 302,22 300
Bánh răng Z1=60 Bánh răng Z2=100 Bánh răng Z3=40 Bánh răng Z4=30
i T.N
L
6x40 10x30
60
100
x 40
30
3 Bước 3: Lắp cầu bánh răng
- Bánh răng z1= 60 lắp chặt vào trục vít me dọc bàn máy phay
- Bánh răng z4 = 30 lắp chặt vào trục IV (trục phụ) đầu phân độ
- Bánh răng z2 = 100
z3 = 40 lắp lồng không trên trục trung gian như sơ đồ bên
4 Bước 4: Gá phôi Rà gá cho tâm phôi song song với phương chạy dao dọc và song song với mặt bàn máy.
Gá một đầu trên mâm cặp ba chấu của đầu phân độ, một đầu chống tâm hoặc gá trên hai đầu tâm
Bước 5: Lắp dao phay modul lên trục gá dao và điều chỉnh vị trí giữa dao và phôi Căn | Điều chỉnh dao vào vị trí tâm phôi sử dụng ke vuông và căn mẫu. Khi cắt bằng dao phay ngón modul gá trục dao đứng vuông góc với bàn máy Khi cắt bằng dao phay đĩa modul trên máy phay đứng ta nghiêng đầu máy mang dao đi một góc β = 18°, hướng quay nghiêng đầu máy cùng chiều kim đồng hồ. Trường hợp cắt bằng dao phay đĩa modul trên máy phay ngang thì quay bàn máy một góc β = 18° quay bàn máy cùng chiều kim đồng hồ hướng từ trên xuống. | |
6 | Bước 6: Lấy chiều sâu cắt | Cho dao chạm phôi và điều chỉnh máy sao cho đường tâm đối xứng của dao đi qua tâm phôi và vòng đỉnh của dao chạm nhẹ vào đường kính lớn nhất của phôi, dịch dao ra khỏi phôi nâng bàn máy lấy chiều sâu cắt t = 3,792mm n = 150-200 v/ph; S= tay |
5

Bước 7: Phay rãnh răng t = 3,792mm n = 150-200 v/ph; S= tay | Sau khi lấy chiều sâu cắt ở bước trên tiến hành cắt rãnh răng thứ nhất. Chuyển động chạy dao được thực hiện bằng tay hoặc chạy dao tự động. Cắt xong rãnh răng thứ nhất lùi dao về vị trí ban đầu tiến hành phân độ quay đi hai vòng và 6 lỗ trên hàng lỗ 17 để cắt rãnh răng thứ hai. Kiểm tra răng thứ nhất nếu đạt làm tương tự để cắt các rãnh răng tiếp theo cho đến răng thứ 17 Chú ý: khi gia công phải nới lỏng chốt cố định đĩa chia độ với thân đầu phân độ và chốt cài tay quay đầu chia độ phải cắm vào lỗ của đĩa chia. | |
8 | Bước 9: Kiểm tra | Kiểm tra các kích thước và quan sát độ đều của các răng |






