
Hình 4.4. Giá trị của Sx khi cốt dọc tập trung và không tập trung
Nếu biểu thức trên không được đảm bảo, cần tăng thêm hoặc cốt thép dọc chủ hoặc tổng diện tích cốt thép ngang sườn dầm.
![]()
Ví dụ tính toán
4.4.1. Số liệu tính toán
Tính toán bố trí cốt thép đai cho dầm BTCĐC CST tiết diện chữ T. Tải trọng HL93 được quy định theo tiêu chuẩn TCVN11823-2017
* Kích thước dầm

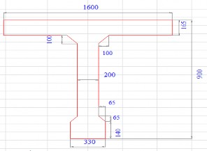
Hình 4.5. Kích thước dầm
* Số liệu tính toán
L = | 20 | m | |
2. Hoạt tải thiết kế | HL-93 | ||
3. Hệ số triết giảm của | m = | 0.65 | |
4. Bề rộng chế tạo cánh | bf= | 1.6 | m |
5. Chiều cao dầm | H | 0.9 | m |
6. Bề rộng sườn dầm | bw | 20 | |
7. Chiều dày cánh | hf | 165 | mm |
6. Tĩnh tải lớp phủ mặt cầu và các tiện ích | 5 | kN/m | |
7. Hệ số phân bố ngang tính cho mô men | 0.55 | ||
8. Hệ số phân bố ngang tính cho lực cắt | 0.6 | ||
9. Hệ số phân bố ngang tĩnh cho độ võng | 0.5 | ||
10. Độ võng cho phép của hoạt tải | L/800 | ||
11. Bê tông có | f'c= | 70 | MPa |
gc= | 24.5 | kN/m3 | |
12. Cốt thép (chịu lực và cấu tạo) theo ASTM A615M có | fy= | 520 | MPa |
13. Tiêu chuẩn thiết kế | TCVN 11823-2017 |
Có thể bạn quan tâm!
-
Bố Trí Cốt Thép Và Các Vị Trí Đo Biến Dạng Và Độ Võng Khi Uốn Dầm Btcđc Cst -
Mô Hình Vết Nứt Khi Uốn Dầm Dầm B-0.63-300-6-300-Sn -
Đồ Thị Quan Hệ Lực Cắt Và Biến Dạng Trong Cốt Đai Vị Trí T2 (Μɛ) -
Nghiên cứu ứng xử cắt của dầm bê tông cường độ cao cốt sợi thép - 19 -
Bảng Tra Thể Tích Đá Được Đầm Chặt Trên Một Đơn Vị Thể Tích Bê Tông -
Nghiên cứu ứng xử cắt của dầm bê tông cường độ cao cốt sợi thép - 21
Xem toàn bộ 184 trang tài liệu này.
4.4.2. Tính toán nội lực trong dầm
Khi tính toán về uốn, với bê tông dầm cấp 70MPa và cốt thép fy=520MPa dầm thấp hơn so với dầm bê tông cốt thép thông thường. Khi cho hàm lượng sợi thấp, để xem xét lượng cốt đai thay đổi như thế nào giữ nguyên chiều cao dầm. Chỉ thiết kế lại cốt đai cho dầm.
Kết quả tính toán nội lực trong dầm như sau: Biểu đồ mô men khi tính toán với tải trọng thiết kế HL93 như hình 4.6.

Hình 4.6. Biểu đồ bao mô men dầm BTCĐC CST tải trọng HL93
Với kết quả mô men như trên, phương án cốt dọc chủ gồm 12 thanh đường kính d=22mm như hình 4.7.

Hình 4.7. Phương án cốt thép cho dầm BTCĐC CST
Tính toán về cắt: Bằng phương pháp đường ảnh hưởng, biểu đồ bao lực cắt do tải trọng thiết kế gây ra có kết quả như hình Hình 4.8. Biểu đồ bao lực cắt dầm BTCĐC CST tải trọng HL93

Hình 4.8. Biểu đồ bao lực cắt dầm BTCĐC CST tải trọng HL93
Với lực cắt tính toán lớn nhất Vumax=289.09KN, thiết kế cốt đai cho dầm BTCĐC và BTCĐ CST cấp 70 MPa, cốt đai đường kính cố định, đường kính ϕ=6mm. Cường độ cốt đai fwy=280MPa. Sử dụng hai loại cốt sợi thép có chiều dài khấc nhau: Dramix có Lf/Df =80 và Lf/Df =63.63 . Hàm lượng cốt sợi thay đổi từ 0%- đến 1% . Xem xét sự thay đổi bước cốt đai khi sử dụng các hàm lượng sợi thép khác nhau và loại sợi khác nhau.Trình tự thiết kế cốt đai như trình bày ở trên.
4.4.3. Kết quả tính toán
Kết quả tính toán cốt thép đai cho dầm cầu bê tông cường độ cao với cấp bê tông 70MPa. Sử dụng cốt sợi Dramix 3D 80/60 BG được mô tả như bảng 4.1
Bảng 4.1 Kết quả tính toán cốt đai cho dầm BTCST khi dùng sợi dài
Loại sợi | Tỷ lệ hình dạng (Lf/Df) | Đường kính đai | Khoảng cách cốt đai thiết kế-S (mm) | Ghi chú | |
0% | 3D 80/60 BG | 80 | 6 | 100 | |
0.5% | 3D 80/60 BG | 80 | 6 | 283 | |
0.63% | 3D 80/60 BG | 80 | 6 | 570 | |
0.75% | 3D 80/60 BG | 80 | 6 | 9030 | Có thể thay thế hoàn toàn cốt đai |
Kết quả tính toán cốt thép đai cho dầm cầu bê tông cường độ cao với cấp bê tông 70MPa. Sử dụng cốt sợi Dramix 3D 65/35 BG được mô tả như bảng 4.2.
Bảng 4.2 Kết quả tính toán cốt đai cho dầm BTCST khi dùng sợi ngắn
Loại sợi | Tỷ lệ hình dạng (Lf/Df) | Đường kính đai | Khoảng cách cốt đai thiết kế- S (mm) | Ghi chú | |
0% | Dramix 3D 65/35 BG | 63.63 | 6 | 100 | |
0.5% | Dramix 3D 65/35 BG | 63.63 | 6 | 280 | |
0.63% | Dramix 3D 65/35 BG | 63.63 | 6 | 560 | |
0.75% | Dramix 3D 65/35 BG | 63.63 | 6 | 9000 | Có thể thay thế hoàn toàn cốt đai |
![]()
Kết luận chương 4
- Chương 4 đã đưa ra được trình tự thiết kế cốt đai cho dầm cầu bê tông cường độ cao có sử dụng cốt sợi thép và cốt đai truyền thống đồng thời chịu tải trọng thiết kế HL93 theo tiêu chuẩn TCVN11823-2017 [1].
- Nếu giữ nguyên kích thước dầm, sử dụng hàm lượng cốt sợi thép rất nhỏ (νf<1%) số lượng cốt đai đã giảm đi rất nhiều. Khoảng cách cốt đai thưa hơn, giúp việc lắp dựng cốt đai và đổ bê tông dễ dàng hơn.
- Hoàn toàn có thể giảm kích thước dầm nếu giữ nguyên cốt đai và sử dụng hàm lượng nhỏ cốt sợi thép.
- Dầm cầu đường bộ hiện nay sử dụng bê tông cốt thép thường hoặc dự ứng lực. Khoảng cách cốt đai hiện thiết kế khá dày mới đủ chịu lực, vì vậy có thể sử dụng thêm cốt sợi thép để giảm cốt đai truyền thống. Khi đó, cần được bổ sung mô hình tính toán cắt cho dầm BT CST trong tiêu chuẩn thiết kế cầu hiện nay.
KẾT LUẬN VÀ KIẾN NGHỊ:
KẾT LUẬN:
Qua nghiên cứu các đặc tính cơ học của BTCĐC CST và ứng xử cắt của dầm bê tông cường độ cao cốt sợi thép Luận án đã đạt được:
1. Đã phân tích, đánh giá được các phương pháp dự báo sức kháng cắt của dầm BTCST nói chung và BTCĐC CST nói riêng trên thế giới và Việt Nam;
2. Luận án đã phân tích và lựa chọn được mô hình Trường nén sửa đổi đơn giản (SMCFT) đề xuất sử dụng để tính toán sức kháng cắt cho dầm BTCĐC CST.
3. Từ phân tích mô hình SMCFT cho thấy, phần đóng góp chính của cốt sợi thép cho sức kháng cắt chính là cường độ chịu kéo sau nứt của BTCĐC CST(σf).
4. Luận án đã nghiên cứu ảnh hưởng của các thông số đến cường độ chịu kéo và cường độ chịu kéo sau nứt của BTCST và BTCĐCCST như hàm lượng cốt sợi, cường độ chịu nén, tỷ số hình dạng sợi…từ nghiên cứu cho thấy, cường độ chịu kéo sau nứt phụ thuộc rất lớn vào hàm lượng sợi đặc biệt là đối với BTCĐC.
5. Nghiên cứu thực nghiệm ép chẻ 105 mẫu BTCĐC CST với 7 cấp hối bê tông CĐC có hàm lượng thép thay đổi từ 0% đến 1.5% cho hai loại sợi có chiều dài khác nhau. Từ kết quả thí nghiệm mẫu vật liệu của 7 cấp phối do đề tài thiết kế, xử lý số liệu bằng thống kê với hàm mục tiêu là cường độ ép chẻ fsp, biến là hàm lượng cốt sợi (0%, 0.5%, 0.63%, 1%, 1.5%). Các thông số đầu vào khác được xem là cố định (cường độ chịu nén fc’, tỷ số hình dạng sợi Lf/Df,…), dùng sợi ngắn và sợi dài, cấp bê tông fc=70MPa cho thấy cường độ chịu kéo của BTCĐC CST tăng rất lớn khi hàm lượng thép tăng. Với hàm lượng sợi thép 1.5% cường độ chịu ép chẻ tăng lên 200% (khi không có sợi cường độ ép chẻ trung bình của các mẫu là 5.4MPa, khi sử dụng cốt sợi thép hàm lượng 1.5% sợi dài cường độ trung bình của tổ mẫu là 11.4 MPa).
6. Luận án đã xây dựng hàm hồi quy tuyến tính mối quan hệ giữa cường độ ép chẻ với hàm lượng sợi cho BTCĐCCST. Từ đó đã đề xuất được mô hình tính cường
l
f '
c
f
d
f
độ kéo sau nứt của cốt sợi thép: 0.37 f .
f
7. Kết hợp mô hình trường nén sửa đổi đơn giản, luận án đễ xuất được mô hình dự báo sức kháng cắt của dầm BTCĐC CST cho hai trường hợp a/d ≥ 2. 5 và a/d <
2. 5 như phương trình (2-85) và(2-83). Công thức dự báo sức kháng cắt của dầm BTCĐC CST có cốt đai cho 2 trường hợp như sau:
V 2.5d / a(f ' 0.37V Lf f ' cotf cot)b d , khi a/d < 2.5 n c f D c z szcr v v f |
8. Mô hình đề xuất trong luận án có thể khảo sát được các yếu tố ảnh hưởng tới sức kháng cắt của dầm BTCĐC CST trong trường hợp số liệu thí nghiệm không có. Mô hình còn cho ta dự báo được góc nghiêng của ứng suất nén chủ. Theo mô hình đề xuất thì góc nghiêng của ứng suất chính là nhỏ hơn 450.
9. Trên cơ sở nghiên cứu thực nghiệm 6 dầm cao 450mm và 400mm dài 2,4m, cho thấy kết quả thí nghiệm so với kết quả dự báo theo công thức đề xuất có sự tương đồng. Kết quả đánh giá theo mô hình đề xuất được so sánh với tính toán tiêu chuẩn ACI 544 4R 88 rất khớp nhau (Vu/ VACI544 từ 0.7 -1.1).
10. Luận án đề ra dược trình tự thiết kế kháng cắt cho dầm cầu bê tông cốt sợi thép tải trọng HL93:
11. Luận án đã áp dụng tính toán cho hàm lượng sợi 0.5% và 0.6% và 0.75%. Kết quả cho thấy hàm lượng cốt đai sử dụng giảm đi đáng kể (giảm tương ứng là 64%, 82%, 99%). Vậy với hàm lượng sợi thép rất nhỏ, hàm lượng cốt đai đã giảm đi rất nhiều.
KIẾN NGHỊ:
Cần nghiên cứu thêm về cắt đối với bê tông cốt sợi thép cường độ cao với hàm lượng sợi thép cao hơn 2% với cấp bê tông mở rộng hơn.
Cần đưa thêm vào chuẩn thiết kế cầu đường bộ TCVN11823-2017 mô hình tính toán về cắt cho dầm BT CST
CÁC CÔNG TRÌNH KHOA HỌC ĐÃ CÔNG BỐ
1. ThS Trần Thị Lý (2017), Nghiên cứu ảnh hưởng của nhiệt độ và độ ẩm bảo dưỡng đến cường độ của bê tông cốt sợi thép cường độ cao, Tạp chí Cầu Đường số 7/2018.
2. Trần Thi Lý, Phạm Duy Anh, Đào Văn Dinh, Đào Quang Huy (2019), Phân tích và so sánh các phương pháp dự tính sức kháng cắt của dầm bê tông cốt sợi thép cường độ cao theo một số tiêu chuẩn hiện hành trên thế giới , Tạp chí GTVT số 8-2019.
3. Trần Thi Lý, Phạm Duy Anh, Đào Văn Dinh (2020), Nghiên cứu ảnh hưởng của cốt sợi thép Dramix đến cường độ chịu kéo của bê tông cường độ cao, Tạp chí GTVT số tháng 7/2020.
4. Trần Thi Lý, Phạm Duy Anh, Đào Văn Dinh (2020), Dự tính sức kháng cắt của dầm bê tông cường độ cao cốt sợi thép dựa vào lý thuyết Trường nén sửa đổi được đơn giản hóa, Tạp chí GTVT số tháng 8/2020.






