
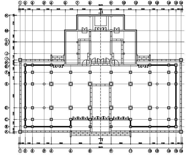
Bản vẽ số 6: Bản vẽ mặt bằng kiến trúc đình Công Đình Nguồn: Công ty cổ phần xây dựng và tôn tạo công trình văn hóa

Bản vẽ số 7: Mặt cắt 1-1 đình Công Đình
Nguồn: Công ty cổ phần xây dựng và tôn tạo công trình văn hóa
Có thể bạn quan tâm!
-
Đình làng thế kỷ XVII – XVIII ở Gia Lâm Hà Nội - Những giá trị lịch sử và văn hoá - 24 -
Đình làng thế kỷ XVII – XVIII ở Gia Lâm Hà Nội - Những giá trị lịch sử và văn hoá - 25 -
Đình làng thế kỷ XVII – XVIII ở Gia Lâm Hà Nội - Những giá trị lịch sử và văn hoá - 26 -
Đình làng thế kỷ XVII – XVIII ở Gia Lâm Hà Nội - Những giá trị lịch sử và văn hoá - 28
Xem toàn bộ 232 trang tài liệu này.

Bản vẽ số 8: Mặt cắt 2-2 đình Công Đình
Nguồn: Công ty cổ phần xây dựng và tôn tạo công trình văn hóa

Bản vẽ số 9: Mặt đứng trục 1 đình Công Đình
Nguồn: Công ty cổ phần xây dựng và tôn tạo công trình văn hóa

Bản vẽ số 10: Mặt đứng trục A đình Công Đình
Nguồn: Công ty cổ phần xây dựng và tôn tạo công trình văn hóa

Bản vẽ số 11: Bản vẽ mặt bằng kiến trúc đình Tình Quang Nguồn: Công ty cổ phần đầu tư - xây dựng công trình văn hóa và đô thị

Bản vẽ số 12: Bặt cắt A-A đình Tình Quang
Nguồn: Công ty cổ phần đầu tư - xây dựng công trình văn hóa và đô thị

Bản vẽ số 13: Mặt cắt B-B đình Tình Quang
Nguồn: Công ty cổ phần đầu tư - xây dựng công trình văn hóa và đô thị

Bản vẽ số 14: Bản vẽ mặt bằng kiến trúc đình Trân Tảo Nguồn: Công ty cổ phần tu bổ di tích và thiết bị văn hóa Trung ương

Bản vẽ số 15: Mặt đứng đình Trân Tảo
Nguồn: Công ty cổ phần tu bổ di tích và thiết bị văn hóa Trung ương

Bản vẽ số 16: Mặt bên đình Trân Tảo
Nguồn: Công ty cổ phần tu bổ di tích và thiết bị văn hóa Trung ương

Bản vẽ số 17: Chi tiết vì trục 6' đình Trân Tảo
Nguồn: Công ty cổ phần tu bổ di tích và thiết bị văn hóa Trung ương

Bản vẽ số 18: Chi tiết vì trục C8-5 đình Trân Tảo
Nguồn: Công ty cổ phần tu bổ di tích và thiết bị văn hóa Trung ương




