![]()
- Cốt thép bố trí theo phương cạnh Lm
AsL = max ( Act ; A tt )
(2.47)
sL sL
- Chọn thép bố trí ≥ 12 ta có diện tích 1 thanh thép
- Tổng số thanh thép theo phương Lm:
![]()
n AsL
L f
fa.
(2.48)
a
- Bước cốt thép theo phương Lm:
![]()
@L =
Bm 100 n L 1

N
tt 0
Qtt tt
(2.49)
0 M0
Hm
hm
1 2
p
max
a
tt min
=n.ptc
min
p
ptt
tt max
=n.ptc
1
L .ptt
B
m tb
bc
Bm
2 lc
1
Lm
L
max
Bm.ptt
1
Bm.ptt
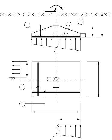
Hình 2.6: Bố trí cốt thép móng đơn
2.1.8.2 Tính toán cốt thép theo phương cạnh Bm
- Mô men uốn theo phương cạnh Bm
M 1 .p tt .L .(B b )2
![]()
(2.51)
B 8 tb m m c
Trong đó:
p
+
p tt p tt
tt min max tb2
(2.52)
- Cốt thép tính toán theo phương cạnh Bm
A tt M B M B
(2.53)
sB R
s H0
0,9.R
s H0
- Cốt thép cấu tạo theo phương cạnh Bm
A
ct
sL min
.Lm
.H 0
(2.54)
Với min= 0,1%
- Cốt thép bố trí theo phương cạnh Bm
AsB = max ( Act ; A tt )
(2.55)
sB sB
- Tổng số thanh thép theo phương Bm:
n AsB
B f
(2.56)
a
- Bước cốt thép theo phương Bm:
@B =
Lm 100 nB 1
(2.57)
2.1.8.3 Các vấn đề về cấu tạo móng đơn
- Bước cốt thép: 80= @min @ @max =250;
- Hàm lượng cốt thép móng tối thiểu min = 0,1%;
- Đường kính cốt thép tối thiểu: ≥ 12;
- Bê tông lót móng có thể sử dụng:
+ Bê tông đá 40x60 mác 100, dày 100;
+ Bê tông đá 10x20 mác 150, dày 50.
- Thép chờ cột:
+ Không tính động đất: 30;
+ Có tính động đất: (40÷50);
- Độ vát a = max{ 200; Hm/3}
2.2 VÍ DỤ TÍNH TOÁN THIẾT KẾ MÓNG ĐƠN
Thiết kế phương án móng đơn với số liệu tải trọng và điều kiện địa chất như
sau:
- Tải trọng tính toán xuống móng:
0
N tt = 69,0 T;
0
Q tt = 4,6 T;
0
M tt= 5,8 T.m;
Qtt
N
tt
0
0
M
tt 0
hm
Hình 2.7: Tải trọng ví dụ tính toán móng đơn
- Điều kiện địa chất:
Bảng 2.5: Số liệu địa chất ví dụ thiết kế móng đơn
Lớp đất | Chiều dày(m) | (T/m3) | | W (%) | C (kG/cm2) | ( độ ) | E0 (kG/cm2) | |
1 | Á cát | 6 | 1,90 | 2,66 | 22 | 0,15 | 20 | 52 |
2 | Á sét | >10 | 1,95 | 2,70 | 20 | 0,25 | 10 | 60 |
Có thể bạn quan tâm!
-
Hướng dẫn đồ án nền móng - 2 -
Chia Nền Đất Dưới Đáy Móng Thành Nhiều Lớp Phân Tố -
Xác Định Ứng Suất Gây Lún Tại Đáy Các Lớp Phân Tố Và Vẽ Biểu Đồ Ứng Suất -
Đánh Giá Điều Kiện Địa Hình, Địa Chất Và Thủy Văn -
Xác Định Sức Chịu Tải Cọc Theo Điều Kiện Vật Liệu -
Xác Định Sức Chịu Tải Theo Điều Kiện Nền Đất
Xem toàn bộ 113 trang tài liệu này.
Giải:
2.2.1 Xác định tải trọng xuống móng
- Tải trọng tính toán xuống móng:
0
+ N tt = 69,0T;
0
+ M tt= 5,8 T.m;
0
+ Q tt = 4,6T;
- Tải trọng tiêu chuẩn xuống móng:
0
+ N tc= 69,0/1,15 = 60,0T;
0
+ M tc= 5,8/1,15 = 5,0 T.m;
0
+ Q tc = 4,6/1,15 = 4,0T;
2.2.2 Tóm tắt điều kiện địa chất thủy văn
- Điều kiện địa chất
Lớp đất | Chiều dày(m) | (T/m3) | | W (%) | C (kG/cm2) | ( độ ) | E0 (kG/cm2) | |
1 | Á cát | 6 | 1,90 | 2,66 | 22 | 0,15 | 20 | 52 |
2 | Á sét | >10 | 1,95 | 2,70 | 20 | 0,25 | 10 | 60 |
- Điều kiện thủy văn: Không thấy xuất hiện mực nước ngầm
2.2.3 Lựa chọn độ sâu chôn móng
- Căn cứ vào điều kiện địa chất, thủy văn và điều kiện công trình chọn độ sâu chôn đáy móng: hm = 2,0m.
- Lưu ý: không nên chọn móng quá sâu, điều kiện nền đất á cát dễ bị sạt lở
Qtt
N
tt
0
0
M
tt 0
thành hố móng.
hm=2,0m
Hình 2.8: Chiều sâu đặt móng
2.2.4 Xác định kích thước sơ bộ của móng
- Diện tích sơ bộ của móng xác định theo công thức sau:
kN tc
F 0
Trong đó:
sb R
tb h m
đài;
+ N tc= 60T: tải trọng đứng tiêu chuẩn xuống móng;
0
+ tb = 2,2 T/m3: dung trọng trung bình của đài móng và đất kể từ đáy
+ hm = 2,0m, độ sâu chôn đài móng;
+ k: là hệ số kể đến sự lệch tâm do M và Q xác định gần đúng theo
công thức:
Mtc + Qtc h
5 4.2
k = 1 + e = 1 +0 0 m = 1 =1,22
N
tc60
0
+ R: là cường độ tính toán của nền đất, được xác định theo công thức
của TCVN9362:2012 như sau:
m
Trong đó:
R m1m2 (AB k tc
Bh m
' Dc)
+ Tra bảng 2.1 ta có: m1 = 1,1; m2 = 1,0 ( nhà sơ đồ kết cấu mềm);
+ ktc = 1,1: Số liệu địa chất dựa vào bảng thống kê;
+ Giả định ban đầu lấy Bm = 1,0m;
+ = 1,9 T/m3, dung trọng của đất dưới đáy móng;
+ ' = 1,9 T/m3, dung trọng của đất trên đáy móng;
+ c = 0,15 kG/cm2 = 1,5 T/m2, lực dính của đất;
+ = 200, góc nội ma sát của đất. Tra bảng 2.2 theo TCVN 9362:2012
ta có: A = 0,51; B = 3,06; D = 5,66;
=> R = 1.(0,51.1,0.1,9+3,06.1,9.2,0+5,66.1,5) = 21,1 T/m2
- Vậy diện tích sơ bộ của móng:
kN tc
F0 =
1,22.60
= 4,38 m2
sb R
tb h m
21,1 2,2.2,0
- Đặt k1 = Lm/Bm = (1+e ÷ 1+2e) = (1,22 ÷ 1,44), lấy k1 = 1,4
Fsb
k1
4,38
1,4
Bm = 1,8m
Lm = k1Bm = 1,4.1,8 = 2,5m
Qtc
N
tc 0
0
M
tc 0
ptc
min =10,8T/m
2
p
tc max
=24,7T/m2
Lm =2,5m
hm
2.2.5 Kiểm tra ứng suất dưới đáy móng
Bm=1,8m
Hình 2.9: Ứng suất dưới đáy móng
- Tính lại R với Bm = 1,8m
R = 1.(0,51.1,8.1,9+3,06.1,9.2,0+5,66.1,5) = 21,9 T/m2
- Tính ứng suất phân bố dưới đáy móng
p
tc max min
Trong đó:
N tc
Fm
(1 6e )
Lm
+ N tc N tc F h = 60 + 1,8.2,5.2,0.2,2 = 79,8 T;
o m m tb
+ M tc M tc Q tc h = 5,0 + 4,0.2,0 = 13 T.m;
o o m
M
tc
+ e
N tc
13
79,8
= 0,163 m.
p
tc max
tc
N tc
Fm
N tc
(1 6e
Lm
6e
) 79,8 (1
1,8.2,5
79,8
6.0,163
2,5
6.0,163
)= 24,7 T/m2
2
pmin
(1
Fm Lm
) (1
1,8.2,5
2,5
)= 10,8 T/m
p tc p tc
24,7 10,8 2
p
tc max min
tb2
17,8 T/m
2
- Kiểm tra ứng suất dưới đáy móng
p
tc max
= 24,7 T/m2 ≤ 1,2R = 1,2.21,9 = 26,3 T/m2 (thỏa)
tb
p tc = 17,8T/m2 ≤ R =21,9 T/m2 (thỏa)
p
tc min
= 10,8T/m2 ≥ 0 (thỏa)
2.2.6 Tính toán và kiểm tra lún
2.2.6.1Xác định ứng suất gây lún tại đáy móng
- Ứng suất gây lún tại đáy móng:
gl p tc h
= 17,8 - 1,9.2,0 = 14,0 T/m2
0 tb 0 m
Trong đó:
tb
+ p tc = 17,8T/m2: ứng suất tiếp xúc trung bình tại đáy móng;
+ 0 = 1,9 T/m3: dung trọng của đất trên đáy móng;
2.2.6.2 Chia nền đất dưới đáy móng thành nhiều lớp phân tố đồng nhất hi ≤ Bm/4
- Chọn hi = Bm/5 = 1,8/5 = 0,36m
2.2.6.3Xác định ứng suất bản thân tại đáy các lớp phân tố và vẽ biểu đồ ứng suất
bản thân
- Tại đáy móng:
0
0
m
bt h
= 1,9.2,0 = 3,8 T/m2
- Tại đáy các lớp phân tố:
i
bt
bt h
0
i
i
- Các giá trị được biểu diễn trên hình 2.22 và Bảng 2.14
bt 0
=3,8 T/m
2
gl
0
=14,0 T/m
2
0
4,48
13,61
5,17
2
11,87
5,85
3
9,55
6,54
4
7,45
7,22
5
5,80
7,90
6
4,55
8,59
7
3,64
9,27
8
2,94
9,96
9
2,42
10,64
10
2,03
z
Á cát = 6,0m
Á sét>10m
0,36 0,36
0,36 0,36 0,36 0,36
hdl=3,6m
0,36 0,36
0,36
0,36
hm =2,0m
Hình 2.10: Sơ đồ tính lún
2.2.6.4Xác định ứng suất gây lún tại đáy các lớp phân tố và vẽ biểu đồ ứng suất
bản thân
- Ứng suất gây lún tại đáy móng:
0
gl= 14,0 T/m2
0
- Tại đáy các lớp phân tố:
i
0i
gl k
Trong đó:
.gl
+ Lm/Bm = 1,4;
+ k0i f(Lm/Bm; 2zi/Bm) là các hệ số tính ứng suất tại tâm hình chữ
i
nhật, tra bảng C.1- TCVN9362:2012. Các giá trị hình 2.10 và Bảng 2.7.
glđược biểu diễn trên
Bảng 2.7: Bảng số liệu tính ứng suất bản thân và ứng suất gây lún
hi (m) | zi (m) - | 2.zi/Bm | γi (T/m3) | σibt (T/m2) 3,80 | k0i | σigl (T/m2) 14,00 | Pi (T/m2) | σibt/ σigl | |
0 | - | 1,000 | |||||||
1 | 0,36 | 0,36 | 0,51 | 1,9 | 4,48 | 0,972 | 13,61 | 13,80 | 0,33 |
2 | 0,36 | 0,72 | 1,03 | 1,9 | 5,17 | 0,848 | 11,87 | 12,74 | 0,44 |
3 | 0,36 | 1,08 | 1,54 | 1,9 | 5,85 | 0,682 | 9,55 | 10,71 | 0,61 |
4 | 0,36 | 1,44 | 2,06 | 1,9 | 6,54 | 0,532 | 7,45 | 8,50 | 0,88 |
5 | 0,36 | 1,80 | 2,57 | 1,9 | 7,22 | 0,414 | 5,80 | 6,62 | 1,25 |
6 | 0,36 | 2,16 | 3,09 | 1,9 | 7,90 | 0,325 | 4,55 | 5,17 | 1,74 |
7 | 0,36 | 2,52 | 3,60 | 1,9 | 8,59 | 0,260 | 3,64 | 4,10 | 2,36 |
8 | 0,36 | 2,88 | 4,11 | 1,9 | 9,27 | 0,210 | 2,94 | 3,29 | 3,15 |
9 | 0,36 | 3,24 | 4,63 | 1,9 | 9,96 | 0,173 | 2,42 | 2,68 | 4,11 |
10 | 0,36 | 3,60 | 5,14 | 1,9 | 10,64 | 0,145 | 2,03 | 2,23 | 5,24 |
Tổng | 69,84 |
2.2.6.5 Kiểm tra điều kiện dừng tính lún
z
- Tại độ sâu z = 3,6m ta có bt
10,64T/m2 ≥ 5. gl 5.2,03 = 10,15 T/m2
z
- Vậy tại độ sâu z =3,6m thỏa mãn điều kiện dừng tính lún.
2.2.6.6Tính tổng độ lún và kiểm tra lún
- Tổng độ lún:
n
S i p h
E
i i
i1 oi
S = 0,8 .0,36.69,84
520
S = 0,039m = 3,9 cm
- Kiểm tra: S = 3,9 cm ≤ Sgh = 8cm
- Vậy với kích thước móng đã chọn thỏa mãn điều kiện lún theo tiêu chuẩn.
2.2.7 Xác định chiều cao làm việc của đài móng
2.2.7.1 Xác định sơ bộ tiết diện cổ cột
- Diện tích sơ bộ cổ cột
Fcc
N tt
0
R b
69
0,9.1300
=0,0589 m2






