Trong đó:
+ Chọn Bê tông cổ cột và móng cấp bền B22.5 (mác 300) có Rb = 130 kG/cm2; Rbt = 10 kG/cm2.
+ = (0,7÷0,9), là hệ số uốn dọc, lấy gần đúng = 0,9
=> Chọn bc = 200; lc = 300
N
tt 0
Qtt
0
M
tt 0
L
ptt
min min
=n.
p
tc
p tt =12,4T/m2
p
tt
tc
min
max max
=n.
p
ptt
ptt
max
=28,4T/m2
1
ptt
2
lc
Lxt
Lm =2,5m
45°
Hm
hm
45°
2.2.7.2 Xác định Hm theo điều kiện bền chống uốn
bc
Bxt
Bm=1,8m
Hình 2.11: Sơ đồ xác định chiều cao làm việc của đài móng
- Chiều cao hữu hiệu của đài móng theo điều kiện bền chống uốn:
Trong đó:
+ L =
H0 L
1tb
p tt .Ltt
0,4R ltr
b
Lm lc
2
2,5 0,3= 1,1m
2
+ Ltt = Lm = 2,5m;
+ ltt = lc = 0,3m;
+ Rb = 130 kG/cm2 = 1300 T/m2
p
+
tt 1tb
tt tt
p p
1 max
2
21,4 28,4
2
=24,9 T/m2
p
p
+
tt tt
1 min
tt max
p
tt min
)( Lm lc )
(p
2L
m
= 12,4 (28,4 12,4)( 2,5 0,3)=21,4 T/m2
2.2,5
=> H0
1,1
= 0,70m
24,9.2,5
0,4.1300.0,3
- Chọn Hm theo điều kiện bền chống uốn:
Hm = H0 + (/2 + abv) = 0,70 + 0,05 = 0,75m
2.2.7.3Xác định Hm theo điều kiện xuyên thủng
- Xác định kích thước tháp xuyên thủng:
+ Bxt = bc + 2H0 = 0,2 + 2.0,7 = 1,6m;
+ Lxt = lc + 2H0 = 0,3 + 2.0,7 = 1,7m
- Xác định lực gây xuyên thủng: Để thiên về an toàn ta chỉ cần xét 1 mặt theo phương cạnh dài phía có lực Pttmax.
Ngxt = Fngoài XT . Ptt2tb = B
.( Lm L xt ).p tt
m 2 2tb
Ngxt = 1,8.( 2,5 1,7 ).27,1=19,5 T;
2
Trong đó:
p tt p tt
25,8 28,4 2
p
+
tt
2tb
2 max
2
=27,1 T/m
2
p
p
+
tt tt
2 min
tt max
p
tt min
)( Lm L xt )
(p
2L
m
= 12,4 (28,4 12,4)( 2,5 1,7 )=25,8T/m2
2.2,5
- Xác định lực chống xuyên thủng:
Ncxt = 0,75.Rbt.H0. bc Bxt =0,75.100.0,7. 0,2 1,6= 47,3T
2 2
- Kiểm tra điều kiện xuyên thủng: Ncxt = 47,3T ≥ Ngxt = 19,5 T
- Vậy với chiều cao móng đã chọn thỏa mãn điều kiện xuyên thủng.
2.2.8 Tính toán cốt thép
2.2.8.1Tính toán cốt thép theo phương cạnh Lm
- Mô men uốn theo phương cạnh Lm
M 1 .p tt .B .(L l )2= 1 .24,9.1,8.(2,5 0,3)2 = 27,1 T.m
L 8 1tb m m c8
Trong đó:
p
p
+
tt tt
1 min
tt max
tt min
)( Lm lc )
(p
p
2L
m
=12,4 (28,4 12,4)( 2,5 0,3)=21,4 T/m2.
2.2,5
p
+
tt 1tb
p tt p tt
1 max =
2
21,4 28,4
2
=24,9 T/m2.
- Cốt thép tính toán theo phương cạnh Lm
tt M
M 27,1.1052
AsL LL = 15,4 cm
R s H0 0,9.R s H0 0,9.2800.70
- Cốt thép cấu tạo theo phương cạnh Lm
A
ct
sL min
.Bm
.H 0
= 0,1%.180.70 = 12,6 cm2
- Cốt thép bố trí theo phương cạnh Lm
AsL = max ( Act ; A tt )= 15,4 cm2
sL sL
- Chọn thép bố trí 12 ta có: fa
1,2 .3,14 1,13 cm2
2
4
- Tổng số thanh thép theo phương Lm:
n AsL = 15,4= 14 thanh
f
a
L 1,13
- Bước cốt thép theo phương Lm:
@L =
Bm 100 1800 100= 130
n L 1
14 1
- Vậy thép bố trí theo phương cạnh Lm: 12@130
2.2.8.2Tính toán cốt thép theo phương cạnh Bm
- Mô men uốn theo phương cạnh Bm
M 1 .ptt .L .(B b )2= 1 .20,4.2,5.(1,8 0,2)2= 16,3 T.m
B 8 tb m m c8
Trong đó:
tt ptt ptt
12,4 28,4 2
+ ptb min max=
2
=20,4 T/m .
2
- Cốt thép tính toán theo phương cạnh Bm
![]()
tt M
M 16,3.1052
AsB BB = 9,2 cm
R s H0 0,9.R s H0 0,9.2800.70
- Cốt thép cấu tạo theo phương cạnh Bm
A
ct
sB min
.Lm
.H 0
= 0,1%.250.70 = 17,5 cm2
- Cốt thép bố trí theo phương cạnh Bm
AsB = max ( Act ; A tt )= 17,5 cm2
sB sB
- Chọn thép bố trí 12 ta có: fa
1,2 .3,14 1,13 cm2
![]()
2
4
- Tổng số thanh thép theo phương Bm:
n AsB = 17,5= 16 thanh
![]()
![]()
f
a
B 1,13
- Bước cốt thép theo phương Bm: @B =
Lm 100 2500 100= 160
![]()
![]()
n B 1
- Vậy thép bố trí theo phương cạnh Bm: 12@160
-
16 1

N
tt 0
Qtt tt
Hm
1 @130
0 M0
hm
@1602
p tt =12,4T/m2
p
min
B
L
tt
p
m
tb
.ptt 1
tt max
=28,4T/m 2
c
bc
Bm=1,8m
2 @160 l
1@130
Lm =2,5m
.ptt
L
Bm.ptt
Bm 1
max
Hình 2.12: Sơ đồ tính toán cốt thép
![]()
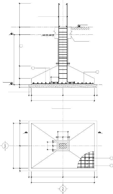
2.2.9 Thể hiện bản vẽ

40Þ
THÉP CHỜ CỘT
± 0.000
300
-0.300
MẶT ĐẤT TỰ NHIÊN
1250
Þ8@100 3
ĐÀ KIỀNG
-2.300
2000
500
2 Þ12@160
50
300
400 50
Þ12@130 1
100250
BT LÓT ĐÁ 4x6 M100 DÀY 100
100
1250 1250
2500
MẶT CẮT B-B
TL:1/25
100
900
100
400
1800
300
50 150150 50
B 50 200 200 50 B
900
Þ12@160 2
100
Þ12@130 1
100 1250 1250
2500
100

GHI CHÚ:
MÓNG (1800x2500)
TL:1/25
* BÊ TÔNG ĐÁ 10X20 MÁC 250 (CẤP ĐỘ BỀN B20)
* THÉP < 10 .Rs = 2250 kG/cm2 (THÉP AI)
* THÉP >= 10 .Rs = 2800 kG/cm2 (THÉP AII)
Hình 2.13: Bản vẽ thể hiện móng đơn
Chương 3
THIẾT KẾ MÓNG CỌC
3.1 TRÌNH TỰ THIẾT KẾ MÓNG CỌC ĐÀI THẤP
3.1.1 Xác định tải trọng xuống móng
- Tải trọng xuống móng có thể tại cao trình mặt đất tự nhiên hoặc đỉnh móng. Khi xác định tải trọng xuống móng cần xác định tổ hợp tải trọng cho nội lực tính toán nguy hiểm nhất xuống như sau:
Ntt
Ntt
Ntt
M
max
tu
tu
M
tt tu
Qtt
hoặc
tt max
Qtt
hoặc
tt tu
M
Qtt
(3.1)
tu
tu
max
- Tiêu chuẩn chia ra thành 2 loại tải trọng:
+ Tải trọng tiêu chuẩn: Dùng để tính toán và kiểm tra theo TTGH II.
+ Tải trọng tính toán: Dùng để tính toán và kiểm tra theo TTGH I.
Ntt Ntc
0 0
0
M tt
Qtt
= n M tc
0
Qtc
(3.2)
0 0
với n = 1,15 là hệ số vượt tải trung bình.
3.1.2 Đánh giá điều kiện địa hình, địa chất và thủy văn
3.1.2.1 Điều kiện địa hình
- Điều kiện địa hình hiện trạng nơi xây dựng theo tỷ lệ 1/500 cần làm rõ:
Trước khi san lấp và sau khi san lấp;
- Các đường ống ngầm, thiết bị, …đi ngang qua công trình.
3.1.2.2 Tổng hợp số liệu khảo sát địa chất, thủy văn phục vụ thiết kế
Căn cứ vào “Báo cáo kết quả khảo sát địa chất công trình” người thiết kế
tổng hợp các số liệu cần thiết phục vụ tính toán thiết kế nền móng:
- Các thông số thí nghiệm hiện trường:
+ Thí nghiệm xuyên: xuyên tĩnh (CPT) và xuyên tiêu chuẩn (SPT);
+ Thí nghiệm hiện trường (nếu có): Thí nghiệm nén tĩnh dọc trục, thí
nghiệm bàn nén tại hiện trường, thí nghiệm nén ngang.
- Các thông số thí nghiệm trong phòng:
+ Các chỉ tiêu vật lý: Các loại dung trọng , tỷ trọng , độ ẩm W, giới
hạn chảy Wl, giới hạn dẻo Wp, độ bão hòa, độ rỗng, hệ số rỗng và các thông
số để đánh giá trạng thái của đất như: độ chặt tương đối D, độ sệt Il, chỉ số
dẻo Ip.
+ Các chỉ tiêu cường độ: Góc nội ma sát , lực dính c;
+ Các chỉ tiêu biến dạng: Mô đun tổng biến dạng E0, hệ số nén lún a, hệ số nén lún tương đối a0, các biểu đồ quan hệ nén lún như: e-p, a0 – p; a- p,..;
- Mực nước ngầm (nếu có) thì thể hiện trong các hình trụ địa chất. Công tác thiết kế cần lưu ý mực nước ngầm thay đổi theo mùa hoặc thay đổi theo thời gian.
- Mặt cắt địa chất, hình trụ các hố khoan, mặt bằng bố trí các hố khoan.
3.1.3 Chọn độ sâu đặt đáy đài (hm)
- Thông thường, độ sâu đặt đáy móng cọc thường không được quá nông hoặc quá sâu. Chiều sâu đặt đáy móng cọc thường được chọn hm = (1,0 – 3,0) m và thỏa mãn điều kiện hmin.
Mặt đất tự nhiên
Q tt
tt
N
0 tt
0 M 0
hm
Ep
Lc
Hình 3.1: Chiều sâu đặt đài móng cọc
- Đối với móng cọc đài thấp, chọn chiều sâu đặt đáy đài cần chú ý hm đủ lớn để lực cắt Qtt0 cân bằng với áp lực đất, nghĩa là:
0
γBm
2Qtt
φ
Trong đó:
hm hmin = 0, 7tg(450 - )
2
(3.3)
+ : Dung trọng của đất trên đáy móng;
+ : Góc nội ma sát của đất trên đáy móng;
+ Bm: Bề rộng móng, ban đầu có thể giả định Bm = 5d (d: cạnh hoặc đường
kính cọc).
+ Qtt0: Lực cắt truyền xuống móng.
3.1.4 Lựa chọn loại cọc, vật liệu làm cọc, biện pháp thi công và dự kiến độ sâu hạ
cọc
3.1.4.1 Lựa chọn loại cọc, vật liệu và biện pháp thi công
a) Bê tông cọc
- Cọc vuông bê tông cốt thép thường thi công theo phương pháp đóng hoặc
ép, cọc khoan nhồi: Mác 250 (B20);
- Cọc bê tông ly tâm dự ứng lực: Mác 600 (B50);
b) Cốt thép cọc
- Cốt thép chịu lực: là loại thép có gân, thường dùng các loại:
+ AII; AIII; AIV;
+ SD295; SD390; SD490;
+ CB300; CB400; CB500-V;
- Cốt đai: Thường dùng thép trơn AI; CI
Bảng 3.2: Các cường độ tính toán của bê tông Rb, Rbt khi tính toán theo các trạng thái giới hạn thứ nhất, MPa (theo TCVN 5574:2012)
Loại bê tông | Cấp độ bền chịu nén của bê tông | ||||||||||
B15 | B20 | B25 | B30 | B35 | B40 | B45 | B50 | B55 | B60 | ||
M200 | M250 | M350 | M400 | M450 | M500 | M600 | M700 | M700 | M800 | ||
Nén dọc trục (cường độ lăng trụ) Rb | Bê tông nặng, bê tông hạt nhỏ | 8,5 | 11,5 | 14,5 | 17,0 | 19,5 | 22,0 | 25,0 | 27,5 | 30,0 | 33,0 |
Kéo dọc trục Rbt | Bê tông nặng | 0,75 | 0,90 | 1,05 | 1,20 | 1,30 | 1,40 | 1,45 | 1,55 | 1,60 | 1,65 |
Nhóm A hạt nhỏ | 0,75 | 0,90 | 1,05 | 1,20 | 1,30 | 1,40 | - | - | - | - | |
Nhóm B hạt nhỏ | 0,64 | 0,77 | 0,90 | 1,00 | - | - | - | - | - | - | |
Nhóm C hạt nhỏ | 0,75 | 0,90 | 1,05 | 1,20 | 1,30 | 1,40 | 1,45 | 1,55 | 1,60 | 1,65 |
Có thể bạn quan tâm!
-
Chia Nền Đất Dưới Đáy Móng Thành Nhiều Lớp Phân Tố -
Xác Định Ứng Suất Gây Lún Tại Đáy Các Lớp Phân Tố Và Vẽ Biểu Đồ Ứng Suất -
Chia Nền Đất Dưới Đáy Móng Thành Nhiều Lớp Phân Tố Đồng Nhất Hi ≤ Bm/4 -
Xác Định Sức Chịu Tải Cọc Theo Điều Kiện Vật Liệu -
Xác Định Sức Chịu Tải Theo Điều Kiện Nền Đất -
M - Đối Với Cầu Và Công Trình Thủy; 3 M - Đối Với Nhà Và Công Trình Khác.






