
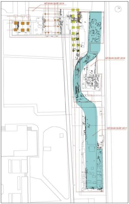
Sơ đồ 06: Mặt bằng tổng thể các di tích xuất lộ năm 2017-2019 Nguồn: Dự án khai quật ĐKT
PHỤ LỤC 3
BẢN ẢNH, BẢN VẼ, BẢN DẬP


1 2
Có thể bạn quan tâm!
-
Vật Liệu Kiến Trúc Thế Kỷ Xv-Xviii Phản Ánh Tính Chất, Đặc Trưng Của Khu Di Tích Chính Điện Kính Thiên -
Tống Trung Tín, (2008), Báo Cáo Kết Quả Khai Quật Di Tích Đàn Nam -
Vật liệu kiến trúc thế kỷ XV-XVIII tại khu vực Chính điện Kính Thiên Hoàng thành Thăng Long qua tài liệu khai quật năm 2017-2019 - 15 -
Vật liệu kiến trúc thế kỷ XV-XVIII tại khu vực Chính điện Kính Thiên Hoàng thành Thăng Long qua tài liệu khai quật năm 2017-2019 - 17 -
Vật liệu kiến trúc thế kỷ XV-XVIII tại khu vực Chính điện Kính Thiên Hoàng thành Thăng Long qua tài liệu khai quật năm 2017-2019 - 18 -
Vật liệu kiến trúc thế kỷ XV-XVIII tại khu vực Chính điện Kính Thiên Hoàng thành Thăng Long qua tài liệu khai quật năm 2017-2019 - 19
Xem toàn bộ 172 trang tài liệu này.


4
3


5 6
Hình 01: 1: Dấu tích ao hồ thời Lê Trung Hưng năm 2017 2: Dấu tích ao hồ thời Lê Trung Hưng năm 2018 3: Địa tầng vách Đông hố khai quật năm 2017
4: Địa tầng vách Đông hố khai quật năm 2017
5: Dấu tích móng cột thời Lê Trung Hưng năm 2019 6: Dấu tích cống nước thời Lê Trung Hưng


1 2


3 4


5 6
Hình 02: 1: Dấu tích đường đi thời Lê Trung Hưng năm 2018
2: Dấu tích sân vườn thời Lê Lê Trung Hưng năm 2019 3-4: Dấu tích ao hồ thời Lê Trung Hưng năm 2019
5: Dấu tích bó nền hoa chanh thời Lê sơ 6: Dấu tích bó nền thời Lê Sơ


1 2


3 4


5 6
Hình 03: 1: Dấu tích bó nền thời Lê Sơ
2: Dấu tích rãnh thời Lê Sơ
3: Dấu tích đường nước thời Trần 4: Dấu tích cống nước thời Trần 5: Dấu tích hàng gạch vồ
6: Dấu tích cống nước gạch thời Đại La Nguồn: Nguyễn Hữu Thiết


1 2


3 4


5
5
6
Hình 04: 1: Gạch in chữ Hán Hữu ký hiệu 17.ĐKT.H1.V71 2: Gạch in chữ Hán Tam Phụ quân
3-4: Gạch in chữ Hán Tam Phụ quân ký hiệu 17.ĐKT.H1.V78 5-6: Gạch in chữ Hán Hổ Uy quân ký hiệu 17.ĐKT.H1.V15 Nguồn: 1,3,5 Nguyễn Hữu Thiết
4 Dự án Điện Kính Thiên 2, 6 Nguyễn Thắng


1
2
4

3 


5
6
Hình 05: 1-2: Gạch in chữ Hán Thu Vật huyện Vũ Linh hương 17.ĐKT.H1.V79
3-4: Gạch in chữ Hán Thu Vật huyện Nhân Khảm hương 19.ĐKT.H1.V13 5: Gạch trang trí chấm tròn ký hiệu 17.ĐKT.H1.V70
6: Gạch vuông không trang trí ký hiệu 17.ĐKT.V34 Nguồn: 1,3,5,6: Nguyễn Hữu Thiết
2,4 Dự án Điện Kính Thiên


1 2


3 4


5 6
Hình 06: 1-2: Gạch chữ nhật trang trí chấm tròn ký hiệu 17.ĐKT.H1.V69 3-4: Gạch thẻ trang trí rồng ký hiệu 19.ĐKT.H1.V03
5-6: Gạch thẻ trang trí rồng ký hiệu 19.ĐKT.H1.V05






