Bv 04: Mặt bằng di tích móng tường thành thời Đại La hố G03-G04. Nguồn: VKCH

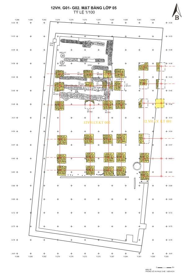
Bv 05:Mặt bằng di tích kiến trúc thời Lý 12.VH.LY.KT001; 12.VH.LY.KT002. Nguồn: VKCH


Bv 06 – 07: Mặt bằng di tích kiến trúc tròn (tâm linh) thời Lý 12.VH.LY.KT004. Nguồn: VKCH

Bv 08: Mặt bằng hiện trạng di tích kiến trúc thời Trần 12.VH.TR.KT001. Nguồn VKCH
Có thể bạn quan tâm!
-
Di tích kiến trúc tại địa điểm Vườn Hồng, 36 Điện Biên Phủ, Hà Nội - 18 -
Di tích kiến trúc tại địa điểm Vườn Hồng, 36 Điện Biên Phủ, Hà Nội - 19 -
Vị Trí Khu Vực Khai Quật Vườn Hồng Trong Bản Đồ Hà Nội, Thời Nguyễn. Nguồn Vkch -
Di tích kiến trúc tại địa điểm Vườn Hồng, 36 Điện Biên Phủ, Hà Nội - 22 -
Di tích kiến trúc tại địa điểm Vườn Hồng, 36 Điện Biên Phủ, Hà Nội - 23 -
Di tích kiến trúc tại địa điểm Vườn Hồng, 36 Điện Biên Phủ, Hà Nội - 24
Xem toàn bộ 192 trang tài liệu này.

Bv 09 : Mặt bằng giả định di tích kiến trúc thời Trần 12.VH.TR.KT001. Nguồn: VKCH

Bv 10: Dấu tích mặt bằng di tích kiến trúc thời Lê sơ 12.VH.LS.KT001. Nguồn VKCH

Bv 11: Mặt bằng di tích kiến trúc thời Lê sơ 12.VH.LE.KT002; 12.VH.LS.KT003. Nguồn VKCH

Bv 12: Mặt bằng di tích kiến trúc thời Lê Trung hưng 12.VH.LTH.KT001; 12.VH.LTH.KT002; 12.VH.LTH.KT003. Nguồn VKCH






