Hình 66: Đường đặc tính công suất kéo của động cơ điện.
Hình 67: Đường đặc tính mô men và công suất của động cơ nhiệt.
Đối với trường hợp hệ thống vận hành kết hợp cả động cơ nhiệt và động cơ điện (kiểu lai hybrid) thì đường đặc tính mô men kéo của bánh xe chủ động được mô tả như ở đồ thị hình 68. Đường đặc tổng hợp có bước
nhảy tại tốc độ hơn 10 km/h.
150 vòng /phút (11,3 km/h) khi kết nối lai song song nhỏ
Hình 68: Đường đặc tính mô men tổng hợp của động cơ điện và động cơ nhiệt.
Có thể bạn quan tâm!
-
Cải Tạo Máy Phát Điện Phù Hợp Với Bộ Nguồn Ắc Quy: -
Thiết Kế Bộ Ly Hợp Ly Tâm Và Ly Hợp Điện Từ: -
Đo Mô Men Và Công Suất Của Bánh Xe Chủ Động: -
Tìm hiểu về công nghệ lai Hybrid trên ô tô và xe máy - 14
Xem toàn bộ 118 trang tài liệu này.
Chương 5:
CẤU TẠO HỆ THỐNG TRUYỀN ĐỘNG CHO XE Ô TÔ (HYBRID) HAI CHỔ NGỒI SỬ DỤNG ĐỘNG CƠ ĐIỆN VÀ ĐỘNG CƠ NHIÊN LIỆU KHÍ HOÁ LỎNG LPG
5.1. Ô tô cá nhân ở Việt Nam:
Theo đánh giá của các nhà chuyên môn, tiềm năng phát triển ô tô ở
nước ta là rất lớn, đặc biệt là các loại ô tô có giá cả ở
mức độ
thấp và
trung bình, phù hợp với túi tiền của đa số người dân lao động. Trong điều kiện cơ sở hạ tầng phục vụ cho giao thông ở nước ta chưa được phát triển, nhà ở thành phố chật hẹp, bãi đậu xe chưa được xây dựng, các loại ô tô cá
nhân cỡ lớn sẽ gây nhiều phiền hà cho công tác tổ chức giao thông cũng
như cho người sử dụng. Vì vậy việc xác định một kiểu dáng xe phù hợp với cơ sở hạ tầng và thỏa mãn các tiêu chí về mức độ phát ô nhiễm ở nước ta là rất cần thiết. Ô tô cá nhân ở nước ta trước hết phải là phương tiện đi lại thông dụng có thể thay thế xe gắn máy. Vì vậy ô tô phải gọn nhẹ có tốc độ và quãng đường hoạt động tương đương với xe gắn máy nhưng an toàn và tiện nghi hơn, đặc biệt là tránh mưa nắng và bụi trên đường. Giá thành
của xe phải thấp để đại bộ phận người dân có nhu cầu có thể mua sắm. Trong bối cảnh đó thì ô tô cỡ nhỏ hai chỗ ngồi là phù hợp với nước ta nhất,
Về hệ thống động lực của ô tô, từ những phân tích trên đây chúng ta thấy xu thế phát triển tương lai của ô tô là hướng về ô tô sinh thái, trong đó ô tô lai kết hợp dẫn động giữa động cơ đánh lửa cưỡng bức và động cơ điện có ưu thế lớn nhất hiện nay. Để đón đầu sự phát triển này, chúng ta chọn hệ thống động lực của ô tô Việt Nam theo kiểu lai điệnnhiệt, trong đó động cơ điện chạy bằng ắc quy và động cơ nhiệt chạy bằng khí gas hóa lỏng LPG. Khác với nguyên tắc ô tô lai "vận hành hiệp trợ" của Toyota, ô
tô lai hai chỗ
ngồi này vận hành theo nguyên tắc "phụ
trợ". Năng lượng
điện nạp vào
ắc quy chủ
yếu lấy từ
lưới điện dân dụng khi ô tô không
hoạt động, còn động cơ nhiệt chỉ kéo máy phát điện cung cấp thêm năng lượng khi xe chạy đường dài hay vượt dốc.
Sử dụng hệ thống động lực như trên đối với ô tô cá nhân ở nước
ta sẽ
mang lại lợi ích về
nhiều mặt. Thật vậy, phần lớn điện năng của
chúng ta được sản xuất bằng thủy điện (năng lượng tái sinh) không có khí thải gây ô nhiễm. Khí dầu mỏ hoá lỏng LPG là sản phẩm của quá trình lọc dầu hay tinh luyện khí thiên nhiên có nguồn cung cấp dồi dào ở nước ta. Hiện nay chúng ta có nhà máy sản xuất ga Dinh Cố và trong tương lai các nhà máy lọc ở Dung Quốc, Vũng Rô, các nhà máy sản xuất gas ở các đầu mối tiếp nhận khí thiên nhiên được xây dựng và đi vào hoạt động thì khả độc lập nhiên liệu LPG của chúng ta sẽ rất lớn.
5.2. Cấu tạo thống động lực ô tô lai hai chỗ ngồi điệnnhiệt tại Việt Nam:
Hình 3 giới thiệu sơ đồ hệ thống động lực của ô tô lai phụ trợ thiết kế. Cơ cấu truyền động cơ khí của ô tô bao gồm các bộ phận chính: động cơ điện, động cơ LPG, hộp vi sai, hộp giảm tốc (truyền lực chính), cầu xe và bánh xe chủ động.


Trên sơ đồ hình 3, động cơ điện có công suất 3kW được cung cấp điện từ nguồn ắc quy có sức điện động 48V. Động cơ nhiệt có dung tích xi lanh 125cm3 nguyên thủy lắp trên xe gắn máy tay ga được chuyển đổi sang chạy bằng LPG nhờ bộ phụ kiện chuyển đổi nhiên liệu GA6. Hai nguồn động lực trên có thể cung cấp cho cầu chủ động của ô tô một cách riêng rẽ
hay phối hợp nhờ
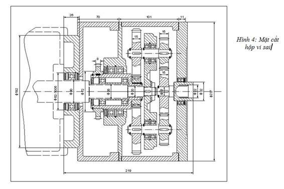
bộ vi sai (hình 4).
Hộp vi vai nhận mo men truyền từ
động cơ
điện và động cơ
LPG. Các chốt điện từ
cho phép người điều
khiển xe phối hợp sử dụng hai nguồn động lực điện, nhiệt. Hình 5 là ảnh chụp các bộ phận của bộ vi sai sau khi chế tạo xong.
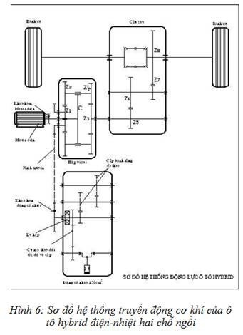
Hình 6 là sơ
đồ hệ
thống truyền lực của ô tô hybrid thiết kế.
Động cơ
điện dẫn động trực tiếp càng bộ
vi sai còn động cơ
LPG dẫn
động bánh răng hành tinh thông qua bộ truyền xích.


Hệ thống động lực trên được lắp thử nghiệm trên chassis của ô tô Toyota để vận hành thử nghiệm trên đường thực.
Kết quả cho thấy tốc độ cực đại của ô tô đạt 35km/h khi chỉ chạy
bằng động cơ
điện, đạt 45km/h khi chỉ
chạy bằng động cơ
LPG và đạt
65km/h khi chạy bằng cả hai nguồn động lực. Hình 7 giới thiệu ảnh chụp hệ thống động lực của ô tô hybrid sau khi lắp đặt xong. Hình 8 là ảnh chụp của xe khi đang chạy thử nghiệm.
Các tính năng của ô tô như trên phù hợp với điều kiện vận hành trong thành phố. Mức độ phát ô nhiễm của ô tô đạt đến mức lý tưởng: ô tô hoàn toàn không phát ô nhiễm khi chạy bằng điện và khi chạy bằng LPG,
mức độ phát ô nhiễm của xe chỉ bằng khoảng 20% mức độ phát ô nhiễm của một xe gắn máy.
Để đơn giản hóa hệ thống động lực ô tô hybid điệnnhiệt phục vụ

nghiên cứu, chúng tôi không lắp hệ thống máy phát điện để nạp điện cho ắc quy cũng như hệ thống thu hồi năng lượng khi phanh. Khi sản xuất thực tế, các hệ thống này có thể bổ sung để hoàn chỉnh ô tô hybrid.

5.3. Kết luận:
Ô tô hybrid hai chỗ ngồi sử dụng động cơ điện chạy bằng ắc quy và động cơ đốt trong chạy bằng khí gas hóa lỏng LPG là ô tô cá nhân phù hợp với điều kiện Việt Nam cả về điều kiện sử dụng lẫn khả năng cung cấp năng lượng và bảo vệ môi trường.
Với các thông số
đã chọn của động cơ
điện và động cơ
nhiệt chạy bằng
LPG, tính năng của ô tô hybrid phù hợp với điều kiện vận hành ở đô thị Việt Nam.
Hệ thống động lực của xe đã được tính toán, thiết kế với việc sử dụng các trang thiết bị có sẵn cho thấy khả năng chế tạo ô tô nói trên là hiện thực.




